Rif: IMMO-124934805
VINOVO
TORINO
In zona residenziale, a pochi passi dal centro del paese, proponiamo casa indipendente da ristrutturare con giardino privato.
Nel progetto già approvato dal Comune, è possibile realizzare:
- al piano terreno soggiorno, cucina e servizio;
- al piano primo tre camere e servizio;
- al piano terreno, adiacente all'immobile, un box auto/taverna.
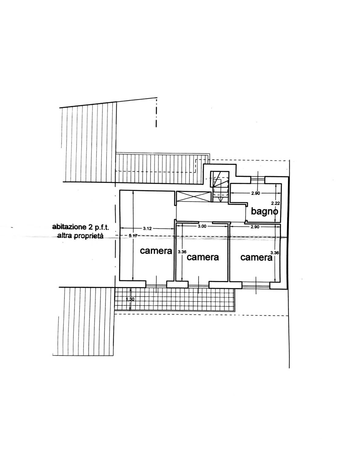
Nel progetto già approvato dal Comune, è possibile realizzare:
- al piano terreno soggiorno, cucina e servizio;
- al piano primo tre camere e servizio;
- al piano terreno, adiacente all'immobile, un box auto/taverna.
Consistenze
| Descrizione | Superficie | Sup. comm. |
|---|---|---|
| Principali | ||
| Immobile - piano terra | 100 Mq | 100 Mqc |
| Totale | 100 Mqc | |








