Rif: IMMO-125703627
VINOVO
TORINO
In contesto privato, a pochi passi dal centro del paese, proponiamo villa a schiera composta di:
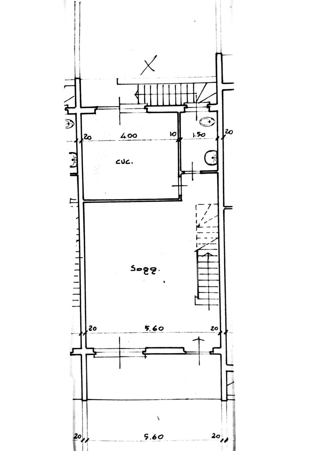
- al piano terra, ingresso su soggiorno, cucina abitabile, disimpegno e servizio;
- al piano primo, collegato da scala interna, camera matrimoniale, due camere singole, ripostiglio e servizio;
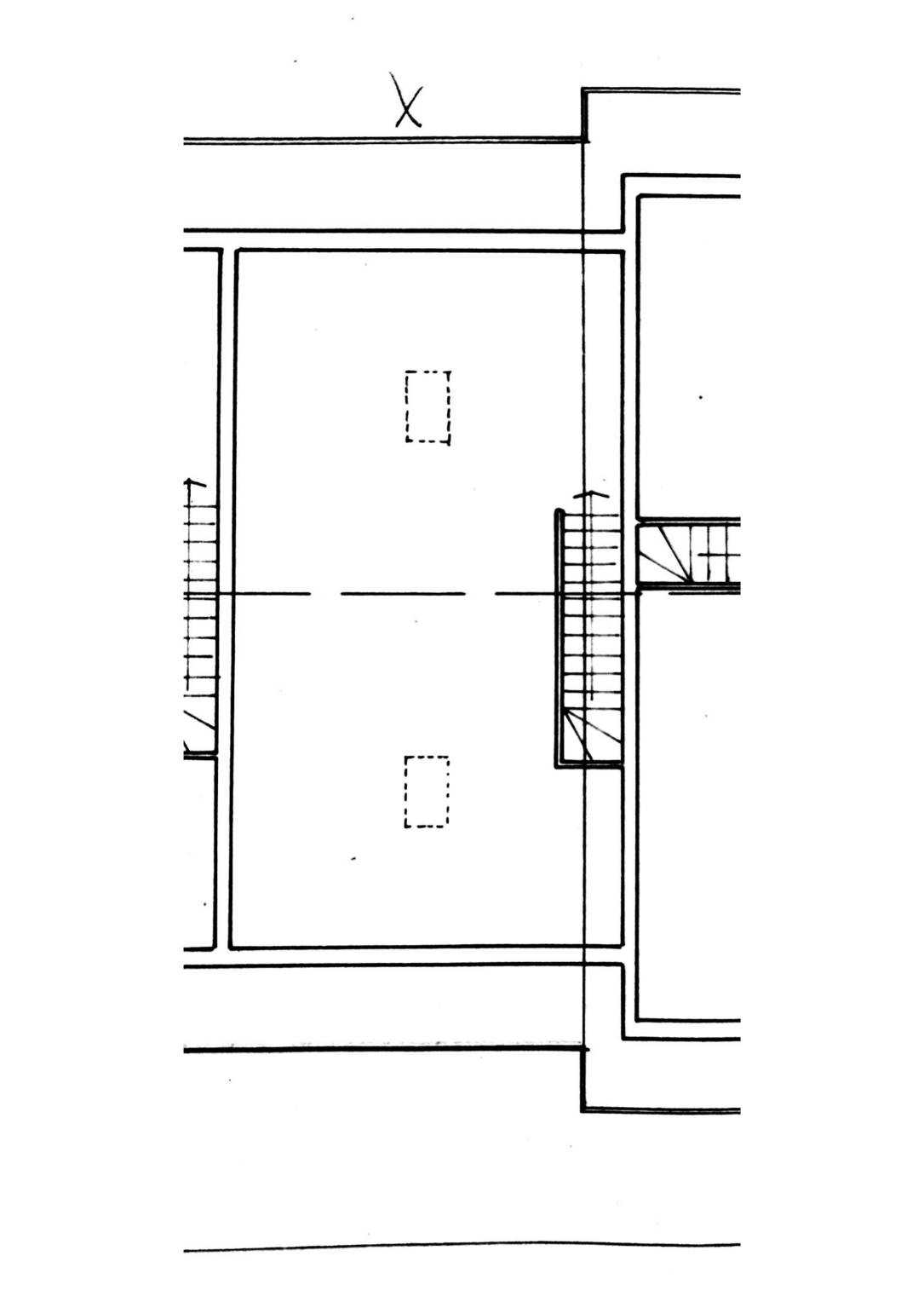
- al piano mansardato locale open-space;
- al piano interrato, ampio box auto e cantina.
Completano la proprietà il giardino privato fronte e retro, oltre al posto auto privato interno cortile.
- al piano terra, ingresso su soggiorno, cucina abitabile, disimpegno e servizio;
- al piano primo, collegato da scala interna, camera matrimoniale, due camere singole, ripostiglio e servizio;
- al piano mansardato locale open-space;
- al piano interrato, ampio box auto e cantina.
Completano la proprietà il giardino privato fronte e retro, oltre al posto auto privato interno cortile.
Consistenze
| Descrizione | Superficie | Sup. comm. |
|---|---|---|
| Principali | ||
| Immobile - piano terra | 180 Mq | 180 Mqc |
| Totale | 180 Mqc | |








